Moin,8)
wo soll ich anfangen, keine Ahnung.:grins:
Helga, ich finde das super, das du von allen Seiten Hilfestellung bekommst,
su kannst wirklich sehr froh sein, das du nicht ganz alleine dastehst.8)

Den Brunnen kannst du auch nutzen, das ist doch schon mal ziemlich genial.


Auf auf zum fröhlichen Jagen, gemeinsam bekommt die Sache Gesicht.

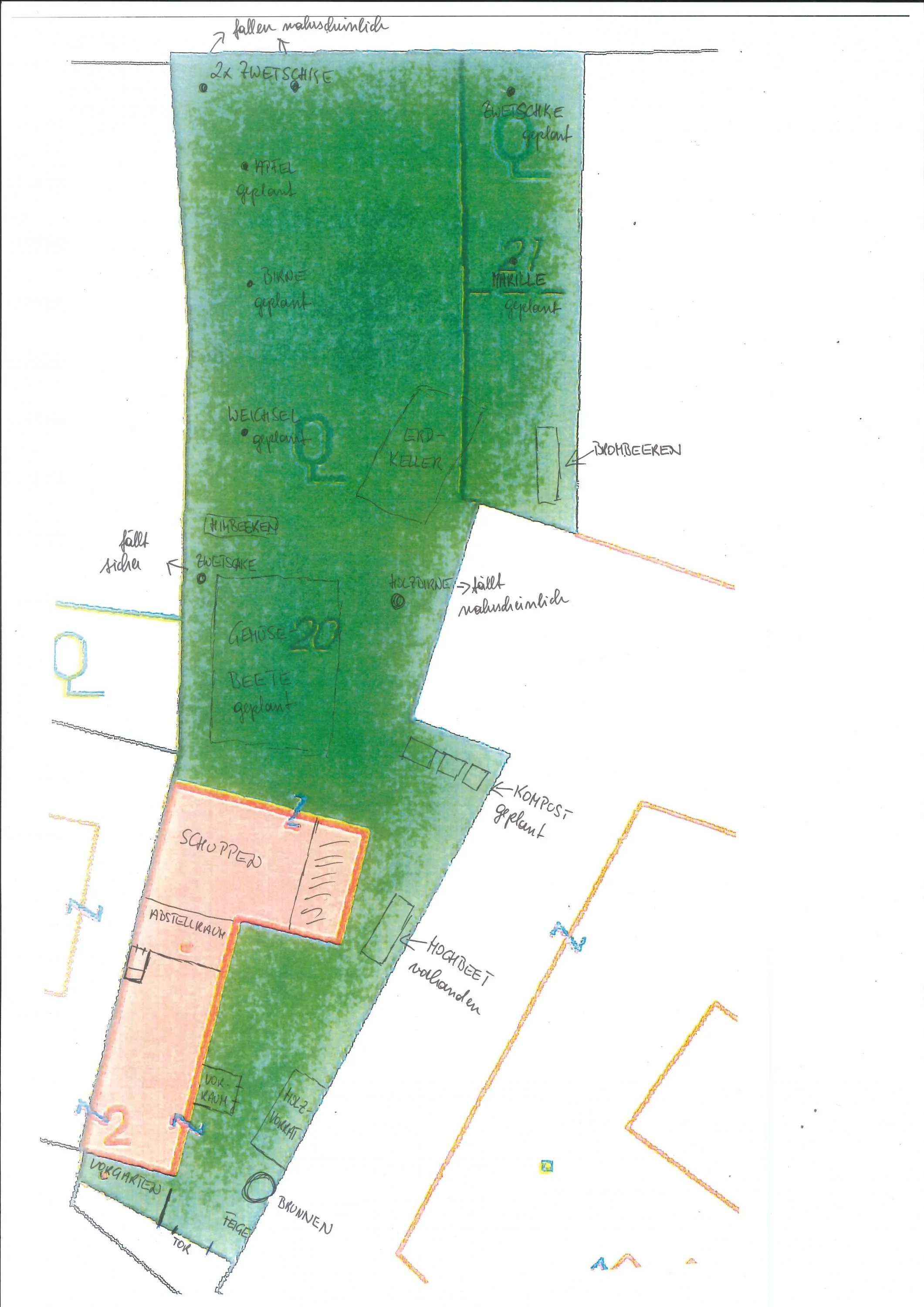
Lieben Dank für die Fotos, es gibt viel zu tun, packmers o.

Eine kleine Umpalnung steht an, das macht nichts, solange alles noch offen ist,
klappt das sicher ganz hervorragend, du siehst ja mit der Zeit, wo du alles unterbringen kannst.
Das war gestern bestimmt toll, ein gutes Mittagessen mit deiner Mama hat mit Sicherheit gut getan, oder?
Es bleibt warm, aber nicht zu warm, ich denke an die blöde Hitze, die garantiert vorbeikommt,
plane gleich einen Pool mit ein. 8)
Viel Erfolg und eine tolle Woche wünsche ich auf der Knusperhäuschenwiese.


